案例解析:
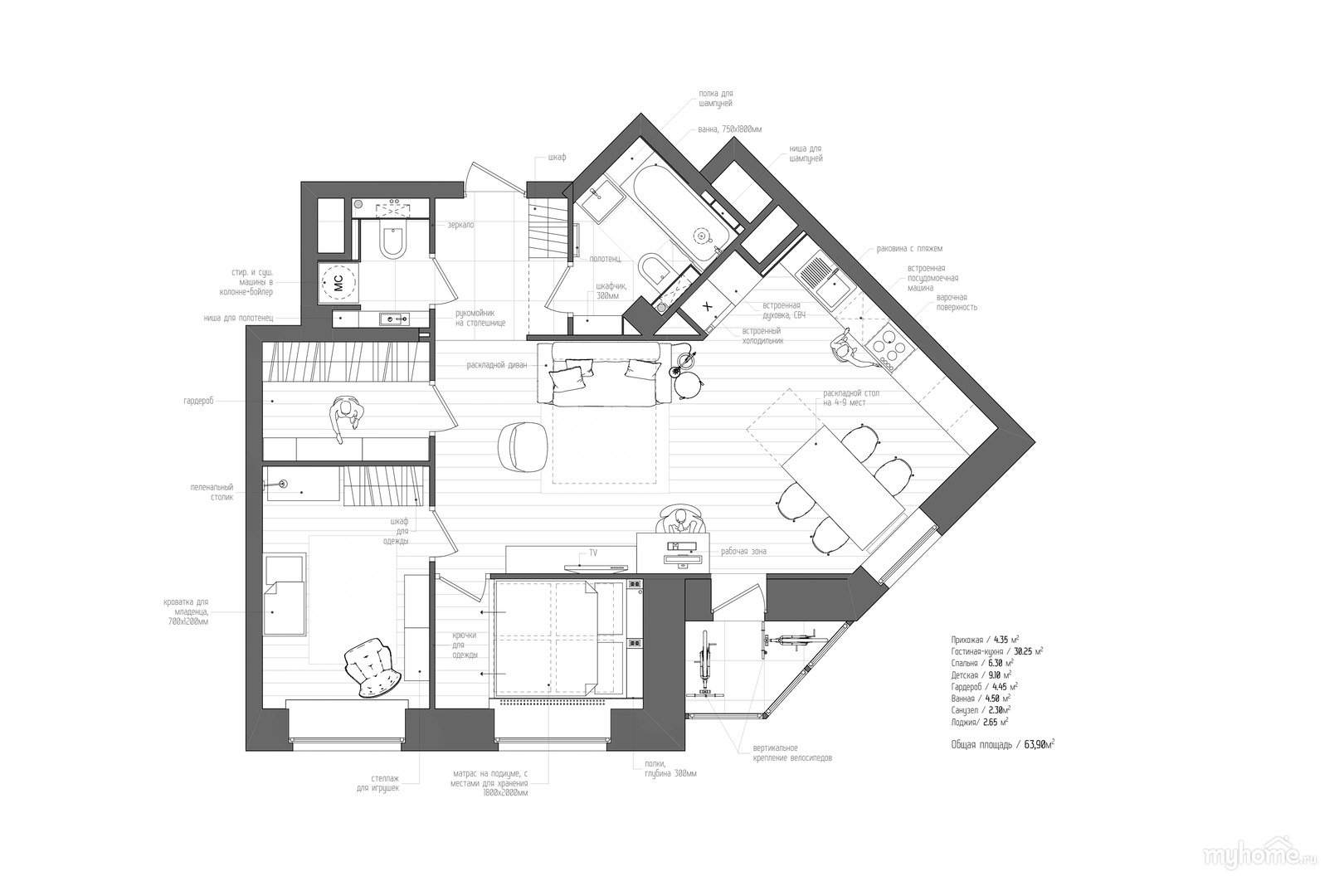
这套户型很有特色,是菱形公寓,设计师划分出流畅动线,以客厅为中心,与厨餐厅共享空间,原本可能在 30 坪以上才有的大客厅,透过这 3 个区域的串连就堆叠出了 10 坪的活动空间。
另一点有趣的地方是,儿童房比父母的主卧房还大,由此可以看出屋主对孩子们自主发展的重视!
什么会被称之为烂格局? 格局不够方正?现在我们就要对这say no!设计师将这间67平米大的菱形公寓,通过精确划分空间,以为中心,开放式设计,与餐厨空间共享,使客厅的视野更为开阔。
书房与客厅合并,电视柜延伸至书桌,而在沙发区,则安置,为阅读提供最好设备。
一字型的厨房,加上,一切都井然有序,而有趣的是,厨房吊柜旁有个黑板,童言趣语为空间带来欢乐。将微波炉嵌入体,省去空间。
主卧利用木板垫高地面,巧妙地设计了一个及飘窗。
儿童房的装饰虽简单,却色调却丰富,随处可见可爱饰物。
家是身与心的放松之地,此时浴缸必备。小角落丝毫不放过,搁板放置衣物及洗浴用品,将洗衣机烘干机嵌入墙中。超强的收纳就是这些不起眼的角落堆叠而成的。