当前城市: 长沙
全国咨询热线:400-857-0857    
售后服务热线:

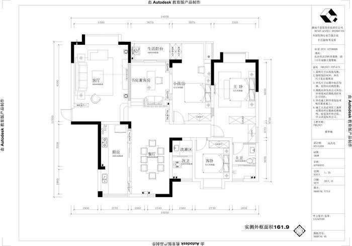
现代简约风格居室

四居简约120-150㎡

现代简约风格

案例风格 简约
案例户型 四居
案例面积 120-150㎡
楼盘名称
所在城市
案例造价
案例详情
您的称呼
您的电话
相关案例推荐更多>>
装修品牌材料
装修核心工艺