当前城市: 长沙
全国咨询热线:400-857-0857    
售后服务热线:

中式装修设计居室

二居中式80-100㎡

中式装修设计

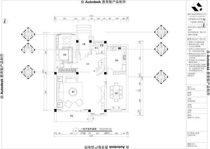
案例风格 中式
案例户型 二居
案例面积 80-100㎡
楼盘名称
所在城市
案例造价
案例详情
您的称呼
您的电话
相关案例推荐更多>>
装修品牌材料
装修核心工艺