永州千思;我有一个朋友,在外地打拼多年,攒了些钱,想回老家发展,加上父母给凑的一些钱,终于在老家买了一套60平的公寓设计,她和我说:“住了那么多年别人的房子,终于要住进属于自己的房子了”。

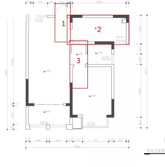
这是原户型图,厨房很大,但利用率不高,家里也没有玄关的位置,洗手台正对房间门,从风水角度讲是不太好的。

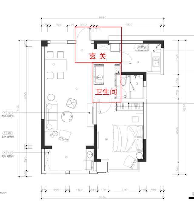
经过设计师改造后的户型图,由于朋友在外吃惯了外卖,不太使用厨房,于是设计师把厨房划分出一块作为玄关和冰箱位置。洗手台正对房间门,老一辈觉得这样风水不好,思来想去,最后决定将厕所旋转90度。


原户型没有玄关,因为厨房面积大,但朋友不喜欢下厨做饭,使用率不高,于是设计师将厨房划分出一块作为玄关。玄关选用通顶的白色橱柜,储物不在话下,哑光材质的看过去还简洁大气。

客厅选择大白墙,地砖采用浅灰色,当白色白墙遇上灰色地砖,沉稳大气。

阳台和客厅之间,没有选择挂窗帘,增强客厅采光外,还让整个空间显得更加简单、干净。

沙发背景墙挂上一个圆形镜子,沙发周围摆放绿植和小物件,使客厅增添生气,不显得过于冷清。

阳台采用白色方砖,加上哑光的白色橱柜,简洁大气。窗帘选择百叶窗,虽然卫生不太好清洁,但当阳光透过百叶照进时,超美。

我们来看看被玄关“偷走”一部分的的厨房,厨房光线不太好,选用大面积玻璃门可以使厨房光线亮堂。

厨房墙面选用灰色小方砖,搭配白色橱柜,形成一个视觉感很强的居家厨房。

餐厅布置也超简单,浅色餐桌布搭配黑色铁架,打造出明亮轻快的氛围。两盏圆形吊灯,暖色光打在餐桌上,驱散多年一人独自在异乡打拼时的孤独感。


全白的卧室会过于冷清,床头背景墙挂上两幅装饰画更显生气。飘窗选用双层窗帘,增加室内采光,也让卧室看起来不那么拥挤。

推拉门的衣柜,大大节省了卧室空间,摆放一张化妆桌也不再话下。

买一个懒人沙发,周末休憩时,坐在上面,吹着微风,弹弹琴陶冶情操。

原始户型是厕所门正对卧室,朋友的父母认为风水不好。所以设计师将厕所一面墙拆除,变成一个中岛台形式。做到了干湿分离,还方便一家人的洗漱需求。

一大面镜柜可以将护肤品化妆品通通藏起,使洗漱台面干净整洁。

浴室里面选择用黑白两种方砖进行铺贴,时尚感超强。

浴室隔断选择用黑色边框,超有质感。